アフォーダブルの例
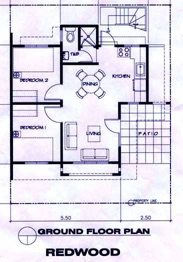
見取り図